



△ 项目外观及室内 摄影:窦俞钧
项目名称 正镶白旗草原社区中心
设计单位 阁尔工作室、内蒙古工大建筑设计有限责任公司
项目地点 内蒙古锡林郭勒盟
建成时间 2023年8月
本文文字由阁尔工作室提供。
关于草原牧居的可持续发展,人们正在从多维度积极寻求对策,并不断探索中。草原牧区的气候、资源、住居、生产、人文等特征的统合,造就了它的独特属性。




△ 单体以多种形式组合成聚落 摄影:窦俞钧
我们深切地感受到:草原牧居可持续发展现状以及实践过程中存在许多问题,缺乏确切、完整的对策,迫切需要对草原牧居的可持续发展进行系统梳理与创造性探索。
针对草原牧区气候严苛、住居结构离散、产居耦合性强等特征,我们团队研发出适宜在地自然、资源、社会的轻型装配式建筑体系。







轻木杆式蒙古包体系,是我们研发的诸多体系之一。该体系为草原牧居和文旅住居提供聚落布局模式、住居空间类型和相应营建技术。

△ 轻木杆式结构体系 摄影:窦俞钧



△ 室内 摄影:窦俞钧
原型设计
草原人居环境中,传统蒙古包是重要的智慧载体,具有便于拆装、易于搬运等特点,承载着游牧民族的生活、生产以及与生态的联系。
传统蒙古包的类穹顶空间是游牧民族的精神世界与核心价值体系的体现,也是应对自然气候的智慧。

△ 蒙古包演变示意图 ©阁尔工作室
在杆式蒙古包体系的设计中,我们以几何重构的方式,传承了传统蒙古包类穹顶的空间形态,并在组织平面空间时植入单元模块与组合拓展机制,获得更多元、更开放的建筑空间,让空间更适合现代使用需求,从而形成了具有弹性的建筑原型及数据库。


△ 平面逻辑分析图 ©阁尔工作室


△ 两种不同原型的杆式蒙古包 摄影:窦俞钧


△ 室内 摄影:窦俞钧
体系设计
杆式蒙古包体系是以一种小截面集成胶合木杆件正交叠合而成的结构体系。它提取了传统蒙古包哈那墙的智慧,进而演化出适合草原环境的装配式结构体系。传统的蒙古包哈那墙通过柳条和牛皮绳的绑扎,形成具有弹性的结构体系,这也是传统蒙古包木结构体系中最为精彩的部分。
我们将柳条和牛皮绳置换为集成胶合木杆件和预制钢构件,以正交叠合的逻辑进行累加组合,构筑出稳定的结构体系。然后,我们通过科学地计算与排布杆件,建立能应对不同气候、不同尺度、不同空间形式,自由选取的结构模型数据库。

△ 结构逻辑分析图 ©阁尔工作室

该体系具有工厂预制、现场组装,结构截面小,整体质量轻等特点,不需要大型机械设备便可在草原上快速搭建安装。



△ 建造逻辑分析图 ©阁尔工作室
系统设计
在体系设计的基础上,我们结合实际需求,植入复合围护结构、能源系统与智能系统。围护结构的选材与结构模型数据库相互匹配,最大限度地确保模数的统一,同时起到节材、增效、控本的作用。

△ 轴测爆炸分析图 ©阁尔工作室
在进行构造设计时,我们重点解决了多层耦合、现场容错等问题,以确保建筑的密闭性、保温性和隔热性,达到了预制装配的效果。
供热系统采用低温辐射电热膜和无线远程智能控制系统,精准监测、采集能耗数据,并独立运算调节每个模块的温度,大幅度降低了能源消耗,同时提升了居住的舒适性。

△ 结构模拟分析图 ©阁尔工作室
结语
本体系从低碳宜居的角度,探索当代草原人居的新型轻质装配式建筑体系。草原人居环境可持续发展是跨学科的综合性问题。我们以建筑为载体,主动地从所能涉及的相关领域中吸取智慧,有意识地探索草原牧居可持续发展新范式,以不断推进草原人居环境的发展。经过多年研究与试验,团队推出了一系列适应时代发展需要,具有草原文化传承的当代草原牧居建筑体系。

△ 形态衍生 ©阁尔工作室


△ 夜景鸟瞰 摄影:窦俞钧

△ 夜景近景 摄影:窦俞钧


△ 夜景远景 摄影:窦俞钧
设计图纸 ▽

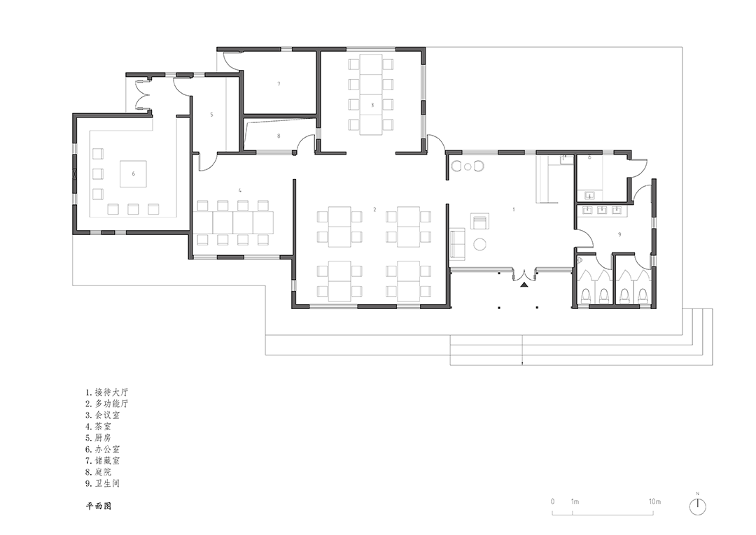
△ 平面图 ©阁尔工作室

△ 平面图-住区户型1 ©阁尔工作室

△ 平面图-住区户型2 ©阁尔工作室

△ 平面图-住区户型3 ©阁尔工作室

△ 剖面图 ©阁尔工作室

△ 剖面图 ©阁尔工作室
项目名称:正镶白旗草原社区中心
项目地点:中国内蒙古自治区锡林郭勒盟正镶白旗
设计指导:张鹏举
主持建筑师:扎拉根白尔、呼和哈达
设计团队:代木日根、渠文勇、孟克朱拉、刘浩东(实习)、谢浩东(实习)、赵震(实习)
设计单位:阁尔工作室、内蒙古工大建筑设计有限责任公司
施工单位:阁尔工作室
设计时间:2023年3月
建成时间:2023年8月
项目业主:正镶白旗威力斯产业服务有限公司
摄影师:窦俞

“设计星”是由广州设计周携手世界建陶航母新中源陶瓷于2015年联合发起,旨在为青年设计师提供学习、交流的成长型平台,涵盖星竞选、星学院、星创投、星传媒、星公益五大版块内容,构建全方位的生态体系,助力青年设计师成长。双方将着力点定位于“向专业致敬”的核心价值观,以“年轻来战”的豪迈气概,演绎青年设计“未来已来”的精彩,合力打造“青年设计师成长平台”,建立年轻一代计师“知识学习”赋能型社群。
联合主办:广州设计周、新中源陶瓷
战略合作媒体:网易家居
星创投品牌联盟:绿豹灯

























蒙公网安备15052402000126号


发表评论